van Megen Immobilien GmbH
Wohnung zur Miete in Straelen

Neuwertige seniorengerechte 3 - Zimmerwohnung mit Terrasse & Garten

Ansprechpartner

van Megen Immobilien GmbH

Telefon: 0 28 34 / 9 42 48 90
Telefax: 0 28 34 / 9 42 48 99

info@mvm-immo.de

Kontakt aufnehmen

Objekt-Nr. 1737

Miete zzgl. NK
630 €
Nebenkosten
220 €
Miete inkl. NK
850 €
Kaution
1.260 €
Wohnfläche
ca. 54,89 m²
Zimmer
3
Anzahl Badezimmer
1
Anzahl Schlafzimmer
1
Anzahl Stellplätze
1
Anzahl Zimmer
3
Bad mit
Dusche, Fenster
Barrierefrei
Baujahr
2024
Befeuerungsart
Fernwärme
Boden
Fliesen, Kunststoff
Fahrstuhl
Personen
Gartennutzung
Haustiere erlaubt
Heizungsart
Zentralheizung, Fußbodenheizung
Küche
offene Küche
Stellplätze
1
Stellplatzmiete
30 €
Stellplatzart
Freiplatz
verfügbar ab
01.04.2026
WBS erforderlich
Zustand
neuwertig

47638 Straelen - Straelen

Beschreibung

Das im Kalenderjahr 2024 fertiggestellte 9-Familienhaus wurde in solider, qualitativ und handwerklich hochwertiger Bauweise gebaut. Das Wohnhaus teilt sich in Erdgeschoss, 1. Obergeschoss und Dachgeschoss auf. Das Mehrfamilienhaus wurde als KFW 55 - Haus gebaut. Im Objekt wird mit Fernwärme geheizt. Die Warmwasserversorgung erfolgt zentral über die Wäremtauscher in jeder Wohneinheit. In den einzelnen Wohnungen sind Fußbodenheizungen mit Raumthermostaten vorhanden, sodass jeder Raum separat geheizt werden kann. Die Heizkosten werden mit entsprechenden Wärmezählern je Wohneinheit ermittelt und gemäß Heizkostenverordnung abgerechnet. Um eine exakte Frischwasser- und Schmutzkanalabrechnung zu ermöglichen, sind für jede Wohneinheit Wasserzwischenzähler vorhanden. Die Außenwände im Erd- und Obergeschoss sind aus zweischaligem Kalksandstein-Mauerwerk mit Wärmedämmung lt. Wärmeschutznachweis und einer Verblendung errichtet worden. Die Dachflächen sind nach Richtlinien des Dachdeckerhandwerks mehrlagig bituminös abgeklebt, einschl. Wärmedämmung nach EnEv. Das Treppenhaus ist modern errichtet und tapeziert. Die Beleuchtung im Treppenhaus erfolgt über Präsenzmelder. Einkäufe können leicht über die vorhandene Aufzugsanlage in die einzelnen Wohnungen transportiert werden. Die Aufzugsanlage ist mit einem Notrufsystem ausgestattet. Es sind Kunststofffenster mit Wärmeschutzverglasung als drei Scheiben Glas mit entsprechenden Profilen gemäß EnEV vorhanden. Die Fensterelemente sind von innen weiß und von außen anthrazit foliert. Die Kunststofffenster der Wohneinheiten enthalten Kunststoffrollladen in grau Standard als Elektrorollladen. Auf den gemeinschaftlichen Flächen und in den Wohneinheiten werden zur Sicherheit der Bewohner entsprechende Rauchmelder installiert. Das Objekt besitzt eine digitale SAT-Anlage. Die benötigten Receiver sind seitens der Bewohner anzuschaffen. Sämtliche Schlafräume und das Wohnzimmer besitzen TV-Anschlüsse. Die Kosten für Hausreinigung und Hauswart sind bereits in den Nebenkosten enthalten. Der zur Wohneinheit gehörende Außenstellplatz ist mit monatlich EUR 30,00 separat zu vergüten.

Ausstattung

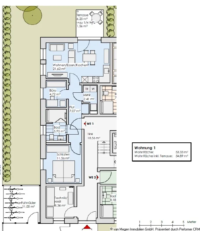
Die zu vermietende Wohnung befindet sich im Erdgeschoss und besteht insgesamt aus 2 1/2 Zimmern, offener Küche, Badezimmer, Hauswirtschaftsraum und Terrasse. Die Wohneinheit wird ohne Wandtapeten an die Mieter übergeben. Die komplette Wohnung ist mit grauem Fliesenbelag, bzw. in den Schlafräumen mit hochwertigem Vinylboden in Holzoptik, ausgelegt. Der Wohn- / Essbereich mit offener Küche ist mit ca. 21,62 qm der größte Raum der Wohnung. Im Küchenbereich ist ein Warmwasseranschluss (über die Heizungsanlage) verbaut. Die vorhandene Einbauküche kann gegen Kostenerstattung übernommen werden. Der Küchenbereich und das Wohnzimmer sind im Format 30 x 60 cm grau gefliest. Durch die Vielzahl der Fenster gelangt viel Tageslicht ins Objektinnere. Zur Gartenseite hin ist ein großes Fenster- und Türelement vorgesehen. Von hier aus kann man die ca. 6,25 qm große Terrasse betreten. Die Terrasse ist mit grauen Betonplatten ausgelegt. Für die Gartenbewässerung ist eine frostfreie Außenzapfstelle installiert. Der anschließende Garten steht im Sondernutzungsrecht und darf ausschließlich vom Nutzer der Erdgeschosswohnung genutzt werden. Auf der Terrasse kann man bis zum Mittag die Sonne genießen. Von der ca. 7,07 qm großen Diele aus kann man das ca. 11,56 qm große Schlafzimmer betreten. Hier ist ausreichend Stellfläche für ein Schrankelement vorhanden. Das dritte Zimmer hat hat eine Größe von ca. 4,72 qm und eignet sich ausschließlich als Abstellraum oder Büro. Das seniorengerechte Bad hat eine Größe von ca. 5,95 qm und ist mit einer bodentiefen Dusche nebst Ganzglasduschkabine als Drehfalttür ausgestattet. Neben der vorhandenen Fußbodenheizung befindet sich im Bad noch ein Handtuchheizkörper. Die Wandflächen sind bis auf eine Höhe von ca. 1,20 m, der Duschbereich deckenhoch, gefliest. Die Anschlüsse für die Waschmaschine- und Kondensationstrockner befinden sich im Hauswirtschaftsraum. So entfallen die weiten Wege bis zum gemeinschaftlichen Wasch- und Trockenraum.

Lage

Das sehr gepflegte Mehrfamilienhaus liegt nur wenige Gehminuten vom Stadtkern der Stadt Straelen entfernt. In wenigen Minuten gelangt man in den "Grünen Bereich" der Stadt, welche sich durch Felder, Wiesen und Wälder auszeichnet. Straelen lädt zum Spazieren, Wandern oder Joggen ein. Straelen ist eine Kleinstadt am Niederrhein mit ca. 16.000 Einwohnern und gehört mit ihrem besonderen Flair zu einer der schönsten Städte am Niederrhein. Die Blumen- und Gemüsestadt ist ein attraktiver Gewerbe- und Dienstleistungsstandort mit dem Schwerpunkt Gartenbau / Agro.-Business. Gute Verkehrsanbindungen, ein hoher Wohn- und Freizeitwert, einer der niedrigsten Gewerbesteuerhebesätze der gesamten Bundesrepublik tragen dazu bei. Straelen liegt direkt an der L 361 und der Bundesstr. 221 Heinsberg / Wesel. Zur BAB 40 (Duisburg / Venlo) sind es lediglich 7 km. Bis zur BAB 61 sind es 13 km. Sport- und Freizeitmöglichkeiten sind in großem Umfang vorhanden. Der vorhandene Marktplatz lädt mit seinen gemütlichen Kneipen, Restaurants, Cafés und Eisdielen zum Verweilen ein.

Sonstiges

Baujahr: 2024
Heizungsart: Zentralheizung
Befeuerung/Energieträger: Fernwärme
Energieausweistyp: Bedarfsausweis
Energiekennwert: 34,8 kWh/(m²*a)
Energieeffizienzklasse: A

Die seniorengerechte Wohneinheit wird ohne Wandtapeten, an die neuen Mieter übergeben. Lassen Sie sich von dieser absolut hochwertigen Immobilie überzeugen und vereinbaren Sie noch heute einen unverbindlichen Besichtigungstermin. Wir freuen uns auf Sie.

Grundrisse

Zurück