van Megen Immobilien GmbH
Wohnung zur Miete in Geldern

Hochwertige Erdgeschosswohnung mit Garten und Garage

Ansprechpartner

Markus Müller

Telefon: 0 28 34 / 9 42 48 90
Telefax: 0 28 34 / 9 42 48 99

info@mvm-immo.de

Kontakt aufnehmen

Objekt-Nr. 1659

Miete zzgl. NK
870 €
Nebenkosten
290 €
Miete inkl. NK
1.160 €
Kaution
1.740 €
Wohnfläche
ca. 73,73 m²
Zimmer
3
Anzahl Badezimmer
1
Anzahl Schlafzimmer
2
Anzahl Zimmer
3
Bad mit
Dusche, Fenster
Barrierefrei
Baujahr
2016
Befeuerungsart
Gas, Solar
Boden
Fliesen, Kunststoff
Fahrstuhl
Personen
Gartennutzung
Haustiere erlaubt
Heizungsart
Zentralheizung
Garagenanzahl
1
Stellplatzmiete (Garage)
60 €
Stellplatzart
Garage
Unterkellert
verfügbar ab
01.05.2026
Wasch/Trockenraum
WBS erforderlich
Zustand
gepflegt

47608 Geldern - Geldern

Beschreibung

Das 8-Familienhaus wurde in solider, qualitativ und handwerklich hochwertiger Bauweise errichtet und im Januar 2017 erstmals bezogen. Das Mehrfamilienhaus ist als KFW 40 - Haus gebaut. Das Objekt hat eine Gas - Brennwerttherme inkl. Warmwasseraufbereitung. Die Warmwasseraufbereitung erfolgt mit Solarunterstützung. Die Solarkollektoren sind auf dem Dach installiert. Da für die Warmwasseraufbereitung keine Durchlauferhitzer oder Untertischgeräte benötigt werden, kann seitens der Mieter noch Strom eingespart werden. In den einzelnen Wohnungen sind Fußbodenheizungen mit Raumthermostaten vorhanden. Die Heizkosten werden mit entsprechenden Wärmezählern je Wohneinheit ermittelt und gemäß Heizkostenverordnung abgerechnet. Um eine exakte Frischwasser- und Schmutzkanalabrechnung zu ermöglichen, sind für jede Wohneinheit Kalt- und Warmwasserzwischenzähler vorhanden. Außerdem ist eine zentrale Lüftungsanlage mit Wärmerückgewinnung eingebaut. Es sind Kunststofffenster mit Wärmeschutzverglasung als drei Scheiben Glas mit entsprechenden Profilen gemäß EnEV vorhanden. Die Fensterelemente sind von innen weiß und von außen grau foliert. Die Kunststofffenster der Wohneinheiten besitzen Kunststoffrollladen in grau Standard als Elektrorollladen. Die Bedienung erfolgt über Kippschalter im Bereich der Fensteranlagen. Das Objekt ist mit einer Kabel-TV Anlage ausgestattet. Die Anmeldung obliegt den Mietern. Sämtliche Schlaf- und Wohnräume sind mit TV-Anschlüssen ausgestattet. Auf den gemeinschaftlichen Flächen und in den Wohneinheiten sind zur Sicherheit der Bewohner entsprechende Rauchmelder installiert. Gemeinschaftlich werden der vorhandene Heizungs- und Hausanschlussraum genutzt. Das Objekt ist unterkellert. Im Kellerbereich ist jeder Wohneinheit ein kleiner Abstellraum zugeteilt. Die Trennwände sind als Metall - Gitterwände mit abschließbaren Türen ausgelegt. Das Objekt besitzt eine moderne Aufzugsanlage mit Notrufsystem. So ist ein problemloser Transport von Wäsche in den Wasch- und Trockenraum möglich. Im Außenbereich ist ein gemeinschaftlicher und abschließbarer Fahrradabstellplatz errichtet. Die zur Wohneinheit gehörende Garage befindet sich unmittelbar am Objekt, ist auch vom eigenen Garten aus betretbar, und ist mit monatlich EUR 60,00 separat zu vergüten.

Ausstattung

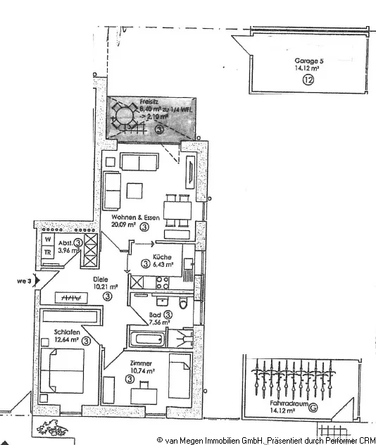
Die zu vermietende Wohneinheit befindet sich im Erdgeschoss des Wohnhauses und besteht insgesamt aus 3 Zimmern, Küche, Diele, Bad, Abstellraum Terrasse und angrenzenden Gartenbereich. Die Innentüren in der Wohneinheit sind weiß und sind mit Edelstahl - Drückergarnituren ausgestattet. Die Wohneinheit wird ohne Tapeten übergeben. So kann sich jeder Mieter bei Bezug individuell einrichten. Sämtliche Fensterelemente sind mit Elektrorollläden ausgestattet. Das Badezimmer, der Abstellraum, die offene Küche und die Diele sind mit hochwertigen und pflegeleichten anthraziten Bodenfliesen ausgelegt. Die anderen Räume besitzen einen Vinylboden in Holzoptik. Die beiden Schlafräume haben eine Größe von ca. 12,64 qm bzw. ca. 10,74 qm. Der zweite Schlafraum eignet sich ideal als Gästezimmer bzw. Bürofläche. Die Küche hat eine Größe von ca. 6,43 qm und ist durch ein Schiebetürelemente mit der Diele verbunden. Von der Küche zum Wohnbereich hin, ist eine halbhohe Mauer als Raumteiler errichtet. Die vorhandene Einbauküche kann gegen Kostenerstattung übernommen werden. Der Wohn- / Essbereich ist mit ca. 20,09 qm der größte Raum der Wohnung. Zur Gartenseite hin ist ein großes Fenster- und Türelement vorhanden. Von hier aus kann man die ca. 8,40 qm große Terrasse betreten. Die Terrasse ist mit einem grauen Betonsteinpflaster ausgelegt. Für die Gartenbewässerung wird eine frostfreie Außenzapfstelle installiert. Auf der Terrasse kann man ab dem Mittag bis in die späten Abendstunden die Sonne genießen. Der anschließende Garten steht im Sondernutzungsrecht und darf ausschließlich vom Nutzer der Erdgeschosswohnung genutzt werden. Das Badezimmer ist mit bodentiefer Dusche inkl. Duschabtrennung sowie einer Badewanne ausgestattet. Das Badezimmer ist mit neutralen Wandfliesen, welche bis auf eine Höhe von ca. 1,40 m verlegt sind, ausgestattet. Im Bereich der Dusche sind die Fliesen deckenhoch verlegt. Die Warmwasseraufbereitung im Bad und in der Küche erfolgt über die zentrale Heizungsanlage. Zur ordnungsgemäßen Belüftung ist im Bad ein Kunststofffenster eingebaut. Neben der vorhandenen Fußbodenheizung im Bad ist zusätzlich noch ein Handtuchheizkörper montiert.

Lage

Die Stadt Geldern liegt am linken Niederrhein und gehört mit ihren ca. 36.500 Einwohnern zu den größeren Städten am Niederrhein. Geldern bietet den Bewohnern eine sehr gute Verkehrsanbindung zu den Autobahnen A 40 und A 57, welche direkt ins Ruhrgebiet oder Richtung Köln führt. Durch den vorhandenen Bahnhof können Berufspendler bequem und stressfrei zu den Arbeitsstätten reisen.
Geldern bietet ein vielfältiges Angebot attraktiver Fachgeschäfte in der verkehrsberuhigten Innenstadt, den neu gestalteten Marktplatz mit Wasserlauf und gemütlicher Außengastronomie. Außerdem besitzt Geldern ein großes Freizeitangebot in den verschiedenen Sportrichtungen mit Segeln, Reiten, Golf, Tennis, Fußball, Volleyball oder Badminton sowie Bädern. Genießen Sie die wunderschöne Landschaft des Niederrheins und lassen Sie sich verzaubern vom Reiz des Niederrheins. Die zu vermietende Wohnung befindet sich nur ca. 10 Gehminuten vom Stadtzentum entfernt.

Sonstiges

Baujahr: 2016
Energiekennwert: 35,00 kWh/(m²*a)
Befeuerung/Energieträger: Gas
Energieausweistyp: Bedarfsausweis
Heizungsart: Zentralheizung
Energieeffizienzklasse: A

Die seniorengerechte und barrierefreie Wohnung eignet sich für sämtliche Altersklassen. Die Wohnung wird ohne Tapeten und mit Bodenbelägen übergeben. Sichern Sie sich die hochwertige Erdgeschosswohnung und vereinbaren noch heute einen unverbindlichen Besichtigungstermin mit uns.

Grundrisse

Zurück