van Megen Immobilien GmbH
Wohnung zur Miete in Geldern

Großzügig geschnittene 2- Zimmerwohnung mit Loggia und Aufzug

Ansprechpartner

Markus Müller

Telefon: 0 28 34 / 9 42 48 90
Telefax: 0 28 34 / 9 42 48 99

info@mvm-immo.de

Kontakt aufnehmen

Objekt-Nr. 1742

Miete zzgl. NK
710 €
Nebenkosten
200 €
Miete inkl. NK
910 €
Kaution
1.420 €
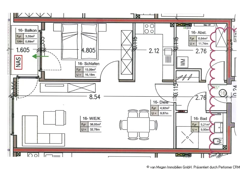
Wohnfläche
ca. 70,94 m²
Zimmer
2
Balkon/Terrasse
ca. 3,55 m²
Alter
Neubau
Anzahl Badezimmer
1
Anzahl Balkone/Terrassen
1
Anzahl Schlafzimmer
1
Anzahl Zimmer
2
Bad mit
Dusche
Barrierefrei
Baujahr
2021
Befeuerungsart
Gas
Boden
Fliesen, Kunststoff
Lage im Objekt (Etage)
3
Fahrstuhl
Personen
Gartennutzung
Haustiere erlaubt
Heizungsart
Zentralheizung, Fußbodenheizung
Küche
offene Küche
verfügbar ab
01.05.2026
WBS erforderlich
Zustand
gepflegt

47608 Geldern

Beschreibung

Das exklusive und seniorengerechte Wohn- und Geschäftshaus wurde in solider, qualitativ und handwerklich bester Massivbauweise errichtet. Die Fertigstellung des Objektes erfolgte im Mai 2021. Im Objekt ist eine Luft-Wasser-Wärmepumpe in Kombination mit einer Gas-Brennwerttherme zur Raumbeheizung eingebaut. Im Zeitalter der stetig steigenden Energiepreise ist diese Heizform eine kostengünstige Alternative. Die Warmwasserversorgung im Badezimmer erfolgt über den vorhandenen Durchlauferhitzer. In der Küche ist seitens des Mieters ein Untertischgerät anzuschaffen. Zur Steuerung der Fußbodenheizung sind in Raum Raumthermostate montiert. Die Heizkosten werden mit entsprechenden Wärmezählern je Wohneinheit ermittelt und gemäß Heizkostenverordnung abgerechnet. Um eine exakte Frischwasser- und Schmutzkanalabrechnung zu ermöglichen, sind für jede Wohneinheit Kaltwasserzwischenzähler vorhanden. Es sind Kunststofffenster mit Wärmeschutzverglasung als drei Scheiben Glas mit entsprechenden Profilen gemäß EnEV vorhanden. Die Fensterelemente sind von innen weiß und von außen anthrazit. Die Kunststofffenster der Wohneinheiten besitzen Kunststoffrollladen in grau Standard als Elektrorollladen. Die Bedienung erfolgt über Kippschalter im Bereich der Fensteranlagen. Durch die bodentiefen Fensterelemente gelangt viel Tageslicht in die Wohnung. In den jeweiligen Wohneinheiten ist ein dezentrales Be- und Entlüftungssystem eingebaut, so dass bei Betrieb eine ordnungsgemäße Lüftung der Wohnung erfolgen kann. In den Wohneinheiten sind zur Sicherheit der Bewohner entsprechende Rauchmelder installiert. Einkäufe können leicht vom Erdgeschoss aus über die vorhandene Aufzugsanlage in die einzelnen Wohnungsetagen transportiert werden. Die Aufzugsanlage ist mit einem Notrufsystem ausgestattet. Zum Abstellen von Fahrrädern und E-Bikes ist ein gemeinschaftlicher abschließbarer Abstellraum geschaffen. Der gemeinschaftliche Müllabstellplatz ist im Außenbereich errichtet worden. Das Wohnhaus besitzt eine Schließanlage. Das Objekt ist mit einem Kabel-TV Anschluss ausgestattet. Die Anmeldung für Kabel-TV ist von den Mietern eigenständig zu tragen. Das Objekt ist seitens der Deutschen Telekom mit einem Glasfaseranschluss ausgestattet worden. Bei Bedarf hat eine Anmeldung seitens des Mieters zu erfolgen. In den Nebenkosten sind neben den üblichen Betriebskosten, bereits die Gebühren für Hausreinigung, Hausmeister, gemeinschaftliche Gartenpflege, Aufzug und Heizung mit enthalten.

Ausstattung

Die zu vermietende Wohneinheit befindet sich im 2. Obergeschoss und besteht aus 2 Zimmern, offener Küche, Diele, Bad, Abstellraum und Loggia. Die komplette Wohneinheit, außer Bad, offene Küche und Hauswirtschaftsraum, ist seitens des Vermieters mit einem hochwertigen Parkettboden ausgelegt Die Deckenflächen werden gespachtelt und weiß gestrichen an die Mieter übergeben. Der Wohnbereich inkl. offener Küche ist mit ca. 38,05 qm der größte Raum der Wohneinheit. Im Bereich der Küche ist kein Fliesenspiegel installiert. Die seitens des Mieters zu installierende Dunstabzugshaube ist mit Filter zu betreiben. Die vorhandene Einbauküche kann gegen Kostenübernahme übernommen werden. Der Wohnbereich und das Schlafzimmer sind mit TV-Anschlüssen ausgestattet. Vom Wohnbereich sowie vom Schlafzimmer kann man durch die Kunststofftüren die ca. 3,55 qm große Loggia betreten. Das Geländer an der Loggia besitzt blickdichte Füllungen, so dass ein Sichtschutz gewährleistet ist. Alle Innentüren, ausser die Wohnzimmertüre, sind aus Holz im Farbton weiß montiert. Eine moderne Milchglastüre wurde im Wohnzimmer eingebaut und rundet das moderne Erscheinungsbild ab. Das Schlafzimmer ist ca. 15,09 qm groß und bietet ausreichend Stellfläche für ein Schrankelement. Das innenliegende Bad hat eine Größe von ca. 5,21 qm und ist mit einer bodentiefen Dusche inkl. Regenwalddusche nebst Ganzglasduschwand ausgestattet. Im Bereich der Dusche sind die weiß glänzenden 40 cm x 80 cm großen Wandfliesen deckenhoch verlegt. Der Boden im Bad ist mit Feinsteinzeugfliesen ausgelegt. Die Einrichtungsgegenstände im Bad sind weiß. Die Warmwasseraufbereitung im Bad erfolgt über den vorhandenen Durchlauferhitzer. Anschlussmöglichkeiten für Waschmaschine und Kondensationstrockner befinden sich im Abstellraum. So entfallen die weiten Wege bis zum gemeinschaftlichen Wasch- und Trockenraum. Die jeweiligen Wohnungseingangstüren haben eine 3-fach Verriegelung und einen Türspion. Selbstverständlich sind die Wohnungen mit Gegensprechanlagen ausgestattet.

Lage

Die Stadt Geldern wirbt gerne mit dem Slogan: Geldern - die LandLebenStadt. Damit wird das Lebensgefühl der Bewohner und Besucher Gelderns zum Ausdruck gebracht. Man genießt es, in einer fast dörflichen Gemeinschaft auf dem Lande zu leben und die Natur vor der Haustüre zu haben. Andererseits bietet die Stadt als vollwirksames Mittelzentrum für ca. 100.000 Personen eine Vielzahl von Einkaufs-, Arbeits-, Schul-, Sport-, Freizeit- und Kulturangeboten. Die Stadt Geldern hat insgesamt ca. 34.750 Einwohner und zählt mit seinen 8 Ortsteilen zu den größten Städten im Kreis Kleve. Geldern ist Einkaufsstadt auch für die Bevölkerung der umliegenden Städte und Gemeinden. Die Arbeitslosenquote liegt in Geldern bei "nur" 5,40 %. Der Flughafen in Düsseldorf ist ca. 50 km und in Weeze ca. 25 km entfernt. Die BAB 40 (Duisburg - Venlo) und 57 (Köln - Goch - Arnheim) sind nur wenige Kilometer von Geldern entfernt. Durch den vorhandenen Bahnhof bietet Geldern Ihnen die Möglichkeit, kostengünstig und stressfrei in die Ballungszentren im Ruhrgebiet oder Düsseldorf / Köln zu gelangen. Der Innenstadtbereich ist fussläufig in wenigen Gehminuten vom Objekt zu erreichen.

Sonstiges

Baujahr: 2021
Energiekennwert: 22 kWh/(m²*a)
Befeuerung/Energieträger: Gas
Energieausweistyp: Bedarfsausweis
Heizungsart: Zentralheizung
Energieeffizienzklasse: A+

Die Wohneinheit wird ohne Tapeten an den Wänden, Deckenflächen gespachtelt weiss gestrichen und mit Bodenbelägen übergeben. So wird jedem Mieter die Möglichkeit der individuellen Raumgestaltung gegeben. Bei Bedarf können jedoch die Wandtapeten vom derzeitigen Mieter übernommen werden. Lassen Sie sich von dieser absolut hochwertigen Immobilie überzeugen und vereinbaren Sie noch heute einen unverbindlichen Besichtigungstermin. Wir freuen uns auf Sie.

Grundrisse

Zurück